
地址:乐清市翁垟街道高阳工业区
电话:188 5886 3377
Copyright?乐清市国增电器科技有限公司,All Rights Reserved 浙ICP备2022011101号-1 版权所有 技术支持:365网站建设
更新时间:2022-09-07 10:36:04
防爆标志:Exdemb IICt5/Exed IICt6
额定电压:AC220V 50Hz
防护等级:IP65
防腐等级:WF2
引入口规格:G3/4
适用电缆外径:φ10mm~φ14mm
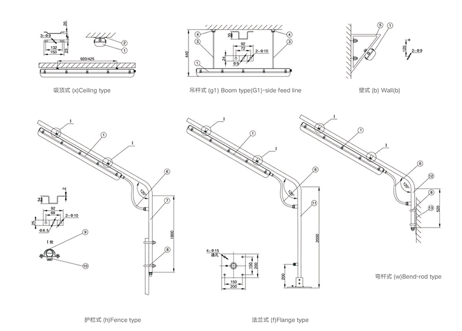
外形尺寸:1250(650)×155×105mm
适用于 1 区、2 区危险场所 ;
适用于 IIA、IIB、IIC 类,温度组别为 T1-T5 的爆炸性气体环境。
防爆标志:Exdemb IICt5/Exed IICt6
额定电压:AC220V 50Hz
防护等级:IP65
防腐等级:WF2
引入口规格:G3/4
适用电缆外径:φ10mm~φ14mm
外形尺寸:1250(650)×155×105mm
下一篇:BJY 系列防爆洁净荧光灯